アクタス福岡県庁前グラシア 604

インターネット使い放題、箱崎宮前駅から徒歩6分、人気の分譲タイプ、馬出九大病院前駅から徒歩7分
賃料 / 管理費 13.6万円 / 4,000円 敷金 / 礼金 無 / 2ヶ月
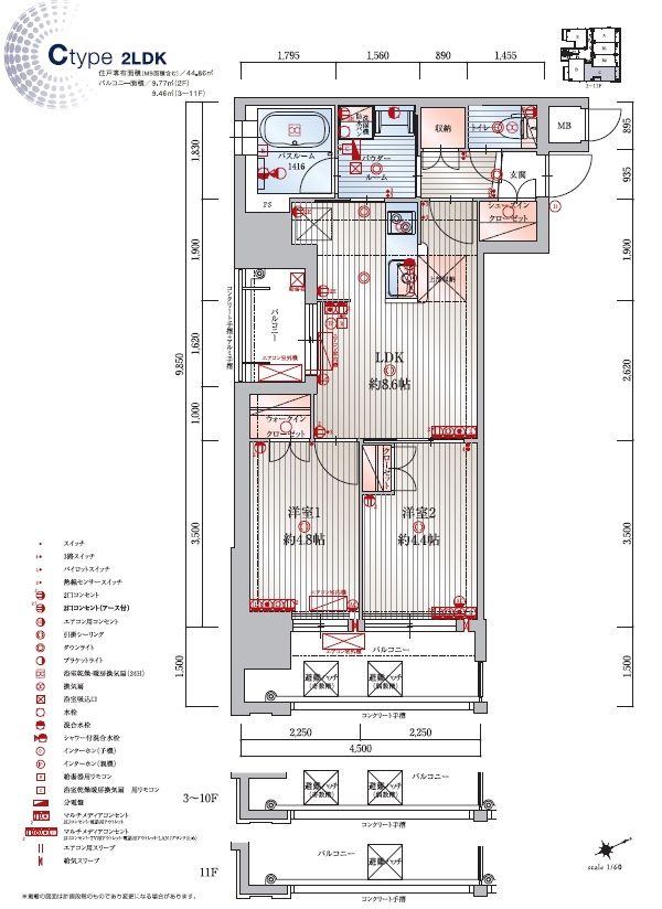
間取り / 面積 2LDK / 44.86㎡ 築年数 築6年9ヶ月
住所 福岡市東区馬出五丁目27-27
交通
  • 福岡市営地下鉄箱崎線
  • 箱崎宮前駅
  • 歩6分
  • 福岡市営地下鉄箱崎線
  • 馬出九大病院前駅
  • 歩7分
  • JR篠栗線
  • 吉塚駅
  • 歩11分
外観画像
外観画像
間取り図
間取り図
種別 マンション 駐車場 空有 12,000円
物件構造 RC造 所在階 / 階数 6階 / 12階建
間取り内訳 LDK8.6/洋4.8/洋4.4 専有面積 44.86㎡
主要採光面 南東 引渡し 相談
設備
  • 角部屋、
  • 日当り良好、
  • 閑静住宅街、
  • 分譲タイプ、
  • 外観タイル張り、
  • 眺望良好、
  • カウンターキッチン、
  • IHクッキングヒーター、
  • ガス、
  • フローリング、
  • 人感照明センサー、
  • 収納スペース、
  • ウォークインクローゼット、
  • 玄関収納、
  • クロゼット、
  • シューズボックス、
  • ディンプルキー、
  • ダブルロックキー、
  • 自動ロック、
  • TVモニタ付きインターホン、
  • 防犯カメラ、
  • インターホン、
  • 都市ガス、
  • 給湯、
  • エレベータ、
  • 宅配ボックス、
  • 駐輪場、
  • 24時間換気システム、
  • 敷地内ゴミ置き場、
  • ゴミ置き場、
  • バイク置場(屋外)、
  • BS端子、
  • CS、
  • インターネット使い放題、
  • 地上デジタル、
  • 追焚機能、
  • トイレ、
  • バス・トイレ 別室、
  • シャワー、
  • 温水洗浄便座、
  • 洗面所、
  • 洗面台、
  • シャンプードレッサー、
  • 洗濯機置場、
  • 室内洗濯機置場、
  • 浴室乾燥機、
  • 独立洗面脱衣所、
  • 浴室に窓、
  • 脱衣所、
  • 暖房便座、
  • バス あり、
  • 浴室暖房、
  • バルコニー、
  • 2面バルコニー、
  • ペット不可、
  • 全居室フローリング、
  • 冷房、
  • 暖房、
  • エアコン、
  • エアコン2台、
備考
小学校区 馬出小学校 中学校区 福岡中学校
物件番号 b1101882 取引態様 仲介
現況 空家 有効期限 2026年04月19日
アクタス福岡県庁前グラシア 604についてのお問い合わせ
店舗写真
  • 福岡市東区名島2-3-11

免許番号:福岡県知事免許(4)第16246号

アクタス福岡県庁前グラシア 604に似ているお部屋

アクタス福岡県庁前グラシア 604

電話で問い合わせ
メールで問い合わせ
お気に入り登録