シュルーク アナーカ 大濠 206

インターネット使い放題、唐人町駅から徒歩6分
賃料 / 管理費 7.6万円 / 5,200円 敷金 / 礼金 無 / 2ヶ月
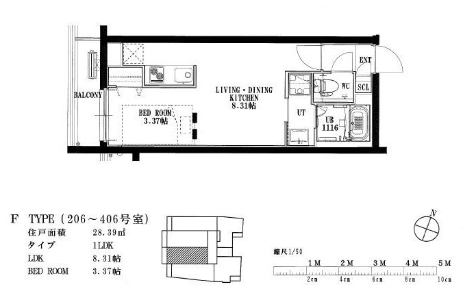
間取り / 面積 1LDK / 28.39㎡ 築年数 築5年0ヶ月
住所 福岡市中央区唐人町三丁目11-15
交通
  • 福岡市営地下鉄空港線
  • 唐人町駅
  • 歩6分
  • 福岡市営地下鉄空港線
  • 大濠公園駅
  • 歩13分
  • 福岡市営地下鉄七隈線
  • 六本松駅
  • 歩26分
外観画像
外観画像
間取り図
間取り図
種別 マンション 駐車場 なし
物件構造 RC造 所在階 / 階数 2階 / 4階建
間取り内訳 LDK8.3/洋3.3 専有面積 28.39㎡
主要採光面 西 引渡し 即時
設備
  • 閑静住宅街、
  • システムキッチン、
  • 2口コンロ以上、
  • 2口、
  • ガス、
  • フローリング、
  • 照明器具付き、
  • 全室照明付、
  • 室内物干機、
  • 収納スペース、
  • ウォークインクローゼット、
  • クロゼット、
  • シューズボックス、
  • ディンプルキー、
  • 自動ロック、
  • TVモニタ付きインターホン、
  • 防犯カメラ、
  • インターホン、
  • プロパンガス 有、
  • 電気、
  • 給湯、
  • 宅配ボックス、
  • 駐輪場、
  • バイク置場(屋外)、
  • CATV、
  • インターネット使い放題、
  • トイレ、
  • バス・トイレ 別室、
  • 温水洗浄便座、
  • 洗面台、
  • シャンプードレッサー、
  • 洗面化粧台、
  • 洗濯機置場、
  • 室内洗濯機置場、
  • 浴室乾燥機、
  • 洗面所独立、
  • 独立洗面脱衣所、
  • 脱衣所、
  • バス あり、
  • トイレ種類 水洗、
  • バルコニー、
  • ペット不可、
  • 全居室フローリング、
  • 冷房、
  • 暖房、
  • エアコン、
備考
小学校区 当仁小学校 中学校区 当仁中学校
物件番号 b1290786 取引態様 仲介
現況 空家 有効期限 2026年02月27日
シュルーク アナーカ 大濠 206についてのお問い合わせ
店舗写真
  • 福岡市早良区藤崎1-1-40
  • 藤崎駅ビル2F

免許番号:福岡県知事免許(4)第16246号

シュルーク アナーカ 大濠 206に似ているお部屋

シュルーク アナーカ 大濠 206

電話で問い合わせ
メールで問い合わせ
お気に入り登録