SOLLIEVO箱崎 406

敷金・礼金ゼロ
賃料 / 管理費 6.2万円 / 4,000円 敷金 / 礼金 無 / 1ヶ月
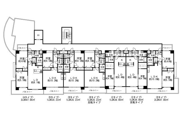
間取り / 面積 1LDK / 36.00㎡ 築年数 築19年3ヶ月
住所 福岡市東区原田一丁目48-4
交通
  • JR鹿児島本線
  • 箱崎駅
  • 歩15分
  • JR篠栗線
  • 柚須駅
  • 歩17分
  • 福岡市営地下鉄箱崎線
  • 箱崎宮前駅
  • 歩24分
外観画像
外観画像
間取り図
間取り図
種別 マンション 駐車場 空無 7,700円
物件構造 RC造 所在階 / 階数 6階 / 8階建
間取り内訳 LDK10.2/洋4.5 専有面積 36.00㎡
主要採光面 引渡し 相談
設備
  • システムキッチン、
  • カウンターキッチン、
  • ガスコンロ設置可、
  • 対面キッチン、
  • ガス、
  • 設置可、
  • フローリング、
  • 収納スペース、
  • ウォークインクローゼット、
  • 玄関収納、
  • クロゼット、
  • シューズボックス、
  • プロパンガス 有、
  • 給湯、
  • エレベータ、
  • 駐輪場、
  • 地上デジタル、
  • トイレ、
  • バス・トイレ 別室、
  • シャワー、
  • 洗面所、
  • 洗面台、
  • 洗濯機置場、
  • 室内洗濯機置場、
  • 洗面所にドア、
  • バス あり、
  • バルコニー、
  • ペット不可、
  • 冷房、
  • 暖房、
  • エアコン、
備考
小学校区 筥松小学校 中学校区 箱崎清松中学校
物件番号 b1476579 取引態様 仲介
現況 居住中 有効期限 2026年04月13日
SOLLIEVO箱崎 406についてのお問い合わせ
店舗写真
  • 福岡市東区名島2-3-11

免許番号:福岡県知事免許(4)第16246号

SOLLIEVO箱崎 406に似ているお部屋

SOLLIEVO箱崎 406

電話で問い合わせ
メールで問い合わせ
お気に入り登録