アイランドシティオーシャン&フォレストタワーWEST 3604

ペット相談可、インターネット使い放題、駐車場無料、広々LDK15畳以上
賃料 / 管理費 22.5万円 / 10,000円 敷金 / 礼金 無 / 無
間取り / 面積 2LDK / 75.10㎡ 築年数 築3年6ヶ月
住所 福岡市東区香椎照葉六丁目2-52
交通
  • 西鉄貝塚線
  • 香椎花園前駅
  • 歩31分
  • 西鉄貝塚線
  • 西鉄香椎駅
  • 歩40分
  • JR鹿児島本線
  • 九産大前駅
  • 歩46分
外観画像
外観画像
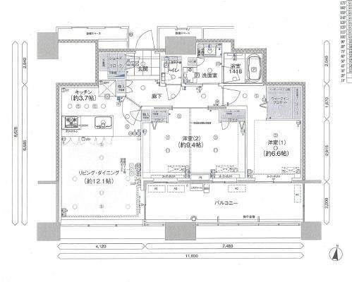
間取り図
間取り図
種別 マンション 駐車場 空有
物件構造 RC造 所在階 / 階数 36階 / 48階建
間取り内訳 LDK15.8/洋9.4/洋6.6 専有面積 75.10㎡
主要採光面 引渡し 相談
設備
  • 日当り良好、
  • 眺望良好、
  • システムキッチン、
  • カウンターキッチン、
  • 3口コンロ以上、
  • 対面キッチン、
  • ガス、
  • フローリング、
  • 収納スペース、
  • ウォークインクローゼット、
  • 全居室収納、
  • 玄関収納、
  • シューズボックス、
  • 二人入居可 可、
  • ディンプルキー、
  • TVモニタ付きインターホン、
  • 24時間セキュリティ、
  • 防犯カメラ、
  • 防犯セキュリティ、
  • インターホン、
  • 都市ガス、
  • 電気、
  • 給湯、
  • エレベータ、
  • 宅配ボックス、
  • エレベーター2基、
  • 敷地内ゴミ置き場、
  • ゴミ置き場、
  • BS端子、
  • CS、
  • インターネット使い放題、
  • インターネット接続 有、
  • 追焚機能、
  • トイレ、
  • バス・トイレ 別室、
  • シャワー、
  • 温水洗浄便座、
  • 洗面所、
  • 洗面台、
  • シャンプードレッサー、
  • 洗濯機置場、
  • 室内洗濯機置場、
  • 浴室乾燥機、
  • 洗面所独立、
  • 独立洗面脱衣所、
  • 脱衣所、
  • 暖房便座、
  • バス あり、
  • バルコニー、
  • ペット相談、
  • 小型犬相談、
  • 振分、
  • LDK15畳以上、
  • 全居室フローリング、
  • 冷房、
  • 暖房、
  • エアコン、
備考
小学校区 照葉小中学校 中学校区 照葉小中学校
物件番号 b2218726 取引態様 仲介
現況 居住中 有効期限 2026年02月17日
アイランドシティオーシャン&フォレストタワーWEST 3604についてのお問い合わせ
店舗写真
  • 福岡市東区名島2-3-11

免許番号:福岡県知事免許(4)第16246号

アイランドシティオーシャン&フォレストタワーWEST 3604に似ているお部屋

アイランドシティオーシャン&フォレストタワーWEST 3604

電話で問い合わせ
メールで問い合わせ
お気に入り登録