エレガンシア二日市西 301

インターネット使い放題、二日市駅まで徒歩10分
賃料 / 管理費 6.7万円 / 3,000円 敷金 / 礼金 無 / 1ヶ月
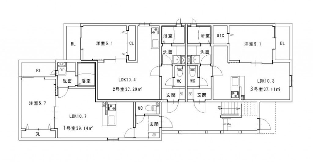
間取り / 面積 1LDK / 39.14㎡ 築年数 築1年2ヶ月
住所 筑紫野市二日市西一丁目5-12
交通
  • JR鹿児島本線
  • 二日市駅
  • 歩10分
  • 西鉄天神大牟田線
  • 紫駅
  • 歩15分
  • 西鉄太宰府線
  • 西鉄二日市駅
  • 歩15分
外観画像
外観画像
間取り図
間取り図
種別 アパート 駐車場 空無
物件構造 木造 所在階 / 階数 3階 / 3階建
間取り内訳 LDK10.7/洋5.7 専有面積 39.14㎡
主要採光面 引渡し
設備
  • 角部屋、
  • 最上階、
  • システムキッチン、
  • カウンターキッチン、
  • ガス、
  • フローリング、
  • 収納スペース、
  • シューズボックス、
  • 二人入居可 可、
  • 自動ロック、
  • TVモニタ付きインターホン、
  • インターホン、
  • プロパンガス 有、
  • 給湯、
  • インターネット使い放題、
  • トイレ、
  • バス・トイレ 別室、
  • シャワー、
  • 温水洗浄便座、
  • 洗濯機置場、
  • 室内洗濯機置場、
  • 浴室乾燥機、
  • 独立洗面脱衣所、
  • 脱衣所、
  • バス あり、
  • バルコニー、
  • ペット不可、
  • 全居室フローリング、
  • エアコン、
備考
小学校区 中学校区
物件番号 b2258893 取引態様 仲介
現況 空家 有効期限 2026年01月25日
エレガンシア二日市西 301についてのお問い合わせ
店舗写真
  • 福岡県筑紫野市二日市中央3-1-10

免許番号:福岡県知事免許(4)第16246号

エレガンシア二日市西 301に似ているお部屋

エレガンシア二日市西 301

電話で問い合わせ
メールで問い合わせ
お気に入り登録