ひまわり荘 201

徳洲会病院バス停より徒歩4分。
賃料 / 管理費 3.2万円 / 無 敷金 / 礼金 2ヶ月 / 無
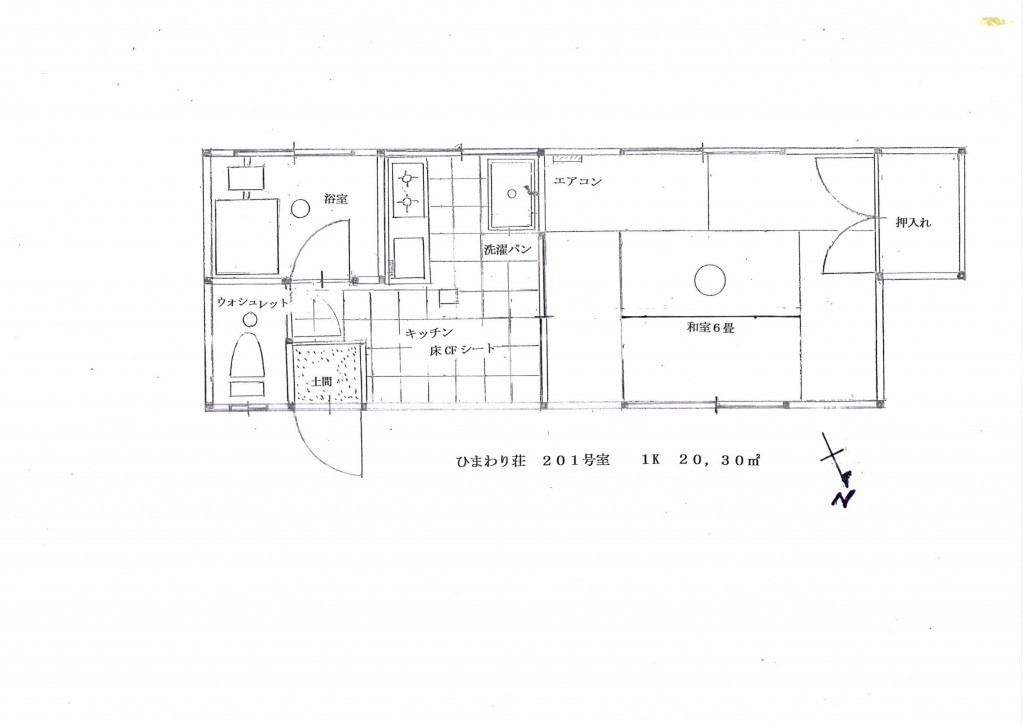
間取り / 面積 1K / 20.30㎡ 築年数 築41年5ヶ月
住所 春日市須玖北三丁目96
交通
  • 西鉄天神大牟田線
  • 井尻駅
  • 歩19分
  • JR鹿児島本線
  • 笹原駅
  • 歩24分
  • JR鹿児島本線
  • 南福岡駅
  • 歩27分
外観画像
外観画像
間取り図
間取り図
種別 アパート 駐車場 空有 5,500円
物件構造 木造 所在階 / 階数 2階 / 2階建
間取り内訳 K/和6 専有面積 20.30㎡
主要採光面 引渡し 相談
設備
  • 角部屋、
  • 最上階、
  • 上階なし、
  • 日当り良好、
  • 閑静住宅街、
  • ガスコンロ設置可、
  • ガス、
  • 設置可、
  • 照明器具付き、
  • 収納スペース、
  • 天袋、
  • 押入れ、
  • プロパンガス 有、
  • 電気、
  • 給湯、
  • 地上デジタル、
  • トイレ、
  • バス・トイレ 同室、
  • シャワー、
  • 温水洗浄便座、
  • 洗濯機置場、
  • 室内洗濯機置場、
  • 暖房便座、
  • バス あり、
  • ペット不可、
  • 和室有、
  • 冷房、
  • 暖房、
  • エアコン、
備考
小学校区 春日北小学校 中学校区 春日北中学校
物件番号 b2267662 取引態様 仲介
現況 空家 有効期限 2026年03月27日
ひまわり荘 201についてのお問い合わせ
店舗写真
  • 福岡市南区向野1-21-6

免許番号:福岡県知事免許(4)第16246号

ひまわり荘 201に似ているお部屋

ひまわり荘 201

電話で問い合わせ
メールで問い合わせ
お気に入り登録