エンクレスト天神FOCUS 1101

ペット相談可、渡辺通駅まで徒歩8分、天神南駅まで徒歩9分
賃料 / 管理費 8.5万円 / 5,000円 敷金 / 礼金 無 / 1ヶ月
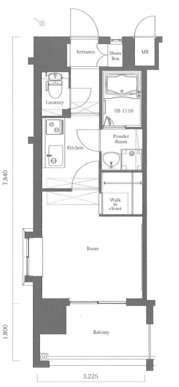
間取り / 面積 1K / 25.28㎡ 築年数 築12年7ヶ月
住所 福岡市中央区春吉二丁目9-16
交通
  • 福岡市営地下鉄七隈線
  • 渡辺通駅
  • 歩8分
  • 福岡市営地下鉄七隈線
  • 天神南駅
  • 歩9分
  • 西鉄天神大牟田線
  • 西鉄福岡(天神)駅
  • 歩13分
外観画像
外観画像
間取り図
間取り図
種別 マンション 駐車場 空無 18,000円
物件構造 RC造 所在階 / 階数 11階 / 12階建
間取り内訳 専有面積 25.28㎡
主要採光面 引渡し 相談
設備
  • 角部屋、
  • 高層階、
  • フローリング、
  • 収納スペース、
  • ウォークインクローゼット、
  • クロゼット、
  • シューズボックス、
  • エレベータ、
  • 宅配ボックス、
  • 駐輪場、
  • バイク置場(屋外)、
  • トイレ、
  • バス・トイレ 別室、
  • 洗面所、
  • 洗面台、
  • 洗濯機置場、
  • 室内洗濯機置場、
  • 洗面所独立、
  • 独立洗面脱衣所、
  • 脱衣所、
  • バス あり、
  • バルコニー、
  • ペット相談、
  • 冷房、
  • 暖房、
  • エアコン、
備考
小学校区 春吉小学校 中学校区 博多中学校
物件番号 b2280087 取引態様 仲介
現況 居住中 有効期限 2026年02月27日
エンクレスト天神FOCUS 1101についてのお問い合わせ
店舗写真
  • 福岡市博多区博多駅東1-12-7
  • 第13岡部ビル2F

免許番号:福岡県知事免許(4)第16246号

エンクレスト天神FOCUS 1101に似ているお部屋

エンクレスト天神FOCUS 1101

電話で問い合わせ
メールで問い合わせ
お気に入り登録