ペット相談可、インターネット使い放題、箱崎駅まで徒歩9分、敷金・礼金ゼロ
| 賃料 / 管理費 | 4.4万円 / 4,000円 | 敷金 / 礼金 | 無 / 無 |
|---|---|---|---|
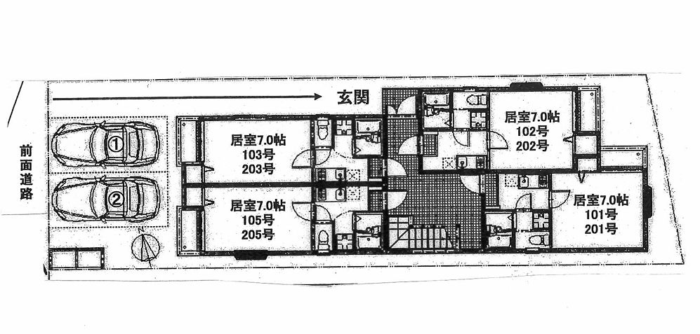
| 間取り / 面積 | 1K / 19.80㎡ | 築年数 | 築19年2ヶ月 |
| 住所 | 福岡市東区筥松二丁目1-12 | ||
| 交通 |
|
||
| 種別 | アパート | 駐車場 | 空無 |
|---|---|---|---|
| 物件構造 | 木造 | 所在階 / 階数 | 2階 / 2階建 |
| 間取り内訳 | 洋7 | 専有面積 | 19.80㎡ |
| 主要採光面 | ― | 引渡し | 相談 |
| 設備 |
|
||
| 備考 | |||
| 小学校区 | 筥松小学校 | 中学校区 | 箱崎清松中学校 |
| 物件番号 | b2310605 | 取引態様 | 仲介 |
| 現況 | 居住中 | 有効期限 | 2026年04月21日 |