JGMマキシム藤崎リバーサイドガーデン 501

藤崎駅まで徒歩6分、室見駅まで徒歩10分
賃料 / 管理費 18万円 / 無 敷金 / 礼金 無 / 2ヶ月
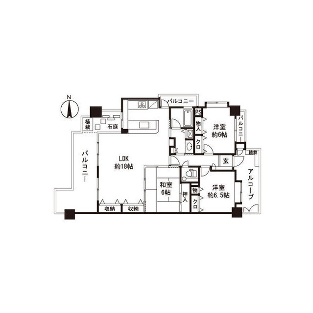
間取り / 面積 3LDK / 88.54㎡ 築年数 築28年5ヶ月
住所 福岡市早良区弥生一丁目2-13
交通
  • 福岡市営地下鉄空港線
  • 藤崎駅
  • 歩6分
  • 福岡市営地下鉄空港線
  • 室見駅
  • 歩10分
  • 福岡市営地下鉄空港線
  • 西新駅
  • 歩22分
外観画像
外観画像
間取り図
間取り図
種別 マンション 駐車場 空有 16,500円
物件構造 RC造 所在階 / 階数 5階 / 8階建
間取り内訳 洋6/洋6.5/和6/LDK18 専有面積 88.54㎡
主要採光面 西 引渡し 相談
設備
  • 角部屋、
  • 眺望良好、
  • システムキッチン、
  • カウンターキッチン、
  • キッチンに窓、
  • 3口コンロ以上、
  • 対面キッチン、
  • ガス、
  • 設置済み、
  • フローリング、
  • 出窓、
  • 収納スペース、
  • クロゼット、
  • シューズボックス、
  • 押入れ、
  • 自動ロック、
  • TVモニタ付きインターホン、
  • インターホン、
  • 都市ガス、
  • 電気、
  • 給湯、
  • エレベータ、
  • CATV、
  • BS端子、
  • CS、
  • 追焚機能、
  • トイレ、
  • バス・トイレ 別室、
  • シャワー、
  • 洗面所、
  • 洗面台、
  • シャンプードレッサー、
  • 洗面化粧台、
  • 洗濯機置場、
  • 室内洗濯機置場、
  • 浴室乾燥機、
  • 洗面所独立、
  • 洗面所にドア、
  • 2WAY洗面所、
  • 独立洗面脱衣所、
  • 浴室に窓、
  • 脱衣所、
  • バス あり、
  • トイレ種類 水洗、
  • バルコニー、
  • 3面バルコニー、
  • ペット不可、
  • 和室有、
  • アルコープ、
備考
小学校区 室見小学校 中学校区 高取中学校
物件番号 b2314903 取引態様 仲介
現況 空家 有効期限 2026年04月29日
JGMマキシム藤崎リバーサイドガーデン 501についてのお問い合わせ
店舗写真
  • 福岡市早良区藤崎1-1-40
  • 藤崎駅ビル2F

免許番号:福岡県知事免許(4)第16246号

JGMマキシム藤崎リバーサイドガーデン 501に似ているお部屋

JGMマキシム藤崎リバーサイドガーデン 501

電話で問い合わせ
メールで問い合わせ
お気に入り登録